首页 关于我们 作品赏析 红鉴福利 红鉴会员 新闻资讯 红鉴认证 联盟品牌 用户登录
Copyright © 2026 红鉴奖-红鉴设计联盟大平台 中国·郑州·中州大道186号正商汇都中心1号楼22层 
豫ICP备2021030612号
红鉴会员作品

祥悦苑—雅居空间-唯简之境

日期: 2025-12-01 浏览:581  

设计说明

本案屋主是一对从商且前卫的新婚夫妇,喜欢深色系且带点现代意式的品质感的家居。他们保持着良好的生活习惯:研究美食,坚持运动,每天读书,适时party下午茶。不论外面的世界多么复杂,回家后能顷刻收获宁静,回归自在随意的生活状态。
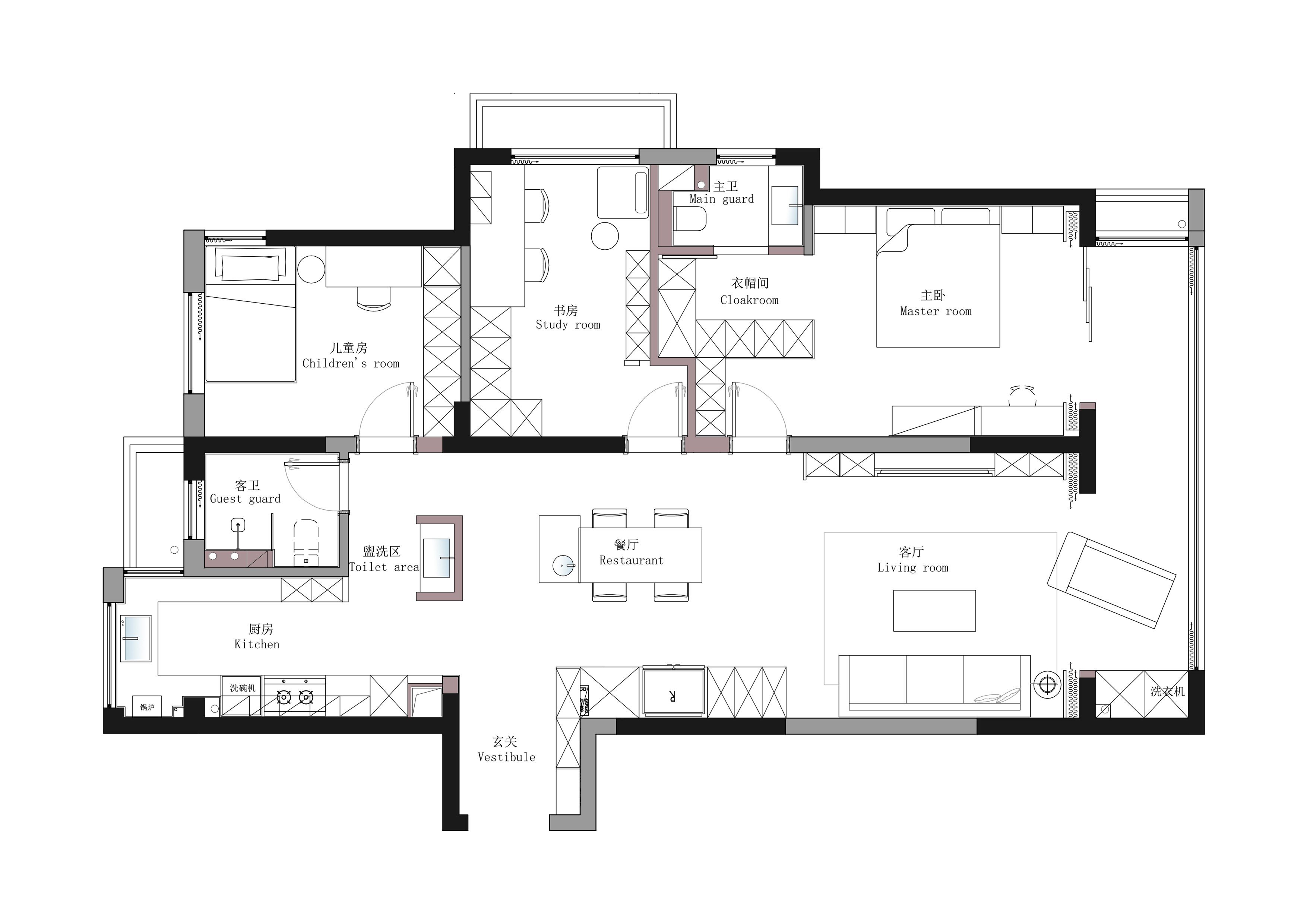
建筑面积:142㎡
所在小区:祥悦苑
设计理念:设计的目的,是造一处无声无感的境域,摒弃繁复错杂的装饰之后,强化感官的感知力,连呼吸声也变得鲜明,连亮起的一盏灯也耐人寻味。空间只是一处自然的载体,无需言说。
设计的初衷,来自业主提到的:简约大气但有质感的静谧空间。空间自入室的一刻起,便开始营造开阔却安静的节奏,深色处理空间的明暗关系,将重心引领向巨大的休闲阳台处。
新时代下的生活方式,在自我意识的觉醒下开始趋向于更具个人意味的个性空间。不止于做攀附潮流的附庸者,而是在个人的独立思考与审美意趣中寻求平衡。

主材选用

深色木饰面与白色墙体间形成分明的落差。主卧以现代简约主义为核心,将实用功能与视觉美学完美融合。卫浴以生活动线为基准,延续简明流畅的操作布局,将空间利用充分体现,塑造精致舒适的居住体验,持续探索实用美学的生活艺术。
浏览(582)收藏 点赞(0)
本案设计师
预约设计师

评论 (0)

上一页 下一页
点评一下
您还未登录,无法发表评论!
立即登录

地址:{dede:myad name='dizhi'/}
X
关闭
复制成功
微信号: 13598010081
添加微信好友, 详细了解产品

长按二维码识别

我知道了
13598010081